EME157 proyectan una vivienda unifamiliar en un encinar cerca de Madrid, esencial y compacta, que se integra con su entorno de modo natural, sin excavaciones, posándose sobre el terreno rocoso con patas de acero y una estructura de paneles aligerados de hormigón y cubierta de pizarra. Un ejercicio de contención formal y constructiva que demuestra que es posible con un presupuesto ajustado conseguir hacer buena arquitectura.

Fotografía: Luis Asín
El texto que a continuación aparece en azul procede de una conversación en torno al proyecto entre Silvia Méndez-Vigo y Gerardo Macarrón de EME 157 , con Berta Blasco y José María Marzo, de Tectónica.
Tectónica: Frente a otras obras que hemos publicado vuestras, este es un encargo especial porque es de un amigo de la infancia y su pareja que incluso os escribieron una carta que era algo más que una lista de deseos era ya la descripción de la casa. En esa carta hay un ‘deseo’ que refleja bien la casa que habéis construido: “La habitación de la montaña es casi el motivo y la inspiración de todo este proyecto. Siempre nos habíamos imaginado una habitación grande y divertida.”
¿Cómo se responde a una ilusión de esas dimensiones?
Gerardo Macarrón: Con mucha confianza porque nos conocíamos muy bien. Con quince años ya nos hicimos una cabaña en la urbanización en la que vivíamos, entre muchos amigos.
Silvia Méndez-Vigo: Los dos (Yonchu y María) tenían claro que su sueño era hacerse una casa y que tenía que ser con nosotros. Es un proyecto de vida. Es su casa, permanente. No tenían mucho presupuesto, pero sí mucha ilusión y ganas. Incluso han participado en la construcción.
GM: La valla de piedra con junta seca la han hecho ellos. Yonchu es ilustrador de dibujos animados (animador), y ahora también pinta, y venía con muchos bocetos y planos. Tenía muchas cosas claras, pero cuando empezaba a dibujarlo, quedaba todo un batiburrillo de pasillos, y entonces les pedí que lo escribieran. Estuvieron trabajando la carta una buena temporada, y ya después de la obra, que nosotros ni nos acordábamos de ella, cuando encendimos la chimenea por primera vez, la sacaron, y era al pie de la letra. La casa tenía todo lo que habían pedido.

Planta baja, alzado principal y lateral. Ver PDF
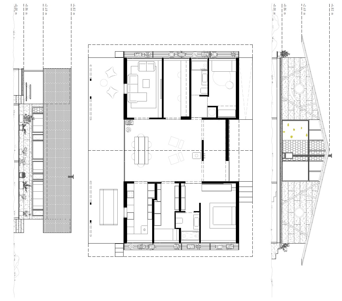
T: En la primera frase ya describen la idea principal: que sea un gran espacio central, que además también es un espacio multifuncional o sin función predeterminada.
GM: Él quería un rocódromo. Ahí es verdad que iba un lucernario, que cayó antes de empezar por cuestiones económicas, pero es como una gran sala de una casa de campo en la que se puede estar, comer o, como ahora lo está usando, pintar.
T: Porque, además del rockódromo, las actividades de esta pareja son muy variadas
GM: También son skater y en el parking tiene unas rampas y en la casa están todo el rato en skate y por eso el suelo tenía que ser de hormigón.

Fotografía: Luis Asín
T: Y para ir entendiendo la casa: una de las habitaciones de los laterales es un estar, con la televisión y un sofá.
SM-V: Para ellos, todo es lúdico. En el cuarto de estar, la televisión la ven tumbados, porque es más una pantalla para videojuegos, tiene mesas de puzles, y luego el cuarto de la montaña, que es importantísimo, está milimétricamente organizado para todos sus cascos y monos (ha sido campeón de España de minimotos y campeón de España de Vespa).
T: Sí, en la memoria hay un espacio, o un pequeño pabellón para arreglar y guardar las motos
GM: Es en lo que estamos ahora, pero ha cambiado su actividad y ahora ese pabellón lo quiere para pintar. Igual hacemos una pérgola como garaje, que sea algo bonito con poco dinero.

Plano de situación. Parcela. Ver PDF
Wasabi Project / vivienda unifamiliar en Colmenarejo
El encargo planteaba un programa muy definido: una vivienda para una pareja sin hijos, con una fuerte vinculación a las actividades de montaña —especialmente la escalada—, el skate y la cultura japonesa. Desde el inicio, los propietarios tenían claro que deseaban una planta ortogonal, organizada en torno a un espacio central de gran altura, con ámbitos más recogidos a ambos lados. La normativa, por su parte, exigía una cubierta inclinada con acabado pétreo.
La parcela, de geometría singular en forma de corazón, se caracteriza por la presencia de encinas y grandes piedras cubiertas de musgo, conformando un entorno natural de gran valor. A ello se sumaba un presupuesto muy ajustado, lo que nos llevó a plantear una vivienda unifamiliar reducida a lo esencial, donde cada decisión espacial y constructiva respondiera a criterios de economía de medios, funcionalidad y respeto por el lugar.... (Memoria del Proyecto)

Fotografía: Luis Asín
T: En cuanto a la formalización y la ejecución hay varias ideas que se cruzan, como es el uso de los X-Panel, en cuanto a tecnología constructiva, y la arquitectura japonesa, como una cierta referencia estética. ¿Cómo aparecen estas referencias y por qué?
GM: El planteamiento constructivo sí lo teníamos claro y, de hecho, les aconsejamos que se compraran una parcela en pendiente, que no la quiera nadie y sea económica, y aunque luego esa topografía encarecerá la obra, como la queremos hacer sobre patas, merecerá la pena.
SM-V: De hecho, esta casa, este proyecto, la maqueta, se hizo para otra parcela.
GM: Hacerla sobre patas ha sido el mayor acierto, porque luego, al hacer el geotécnico, salía roca a 40 cm de profundidad. Hicimos el agujero en dos días, a mano. Vino una bomba, se echaron cuatro metros cúbicos de hormigón, más o menos. Y luego el saneamiento, que va colgado. Muy superficial y muy poco traumático para la parcela.

Replanteo de la plataforma de perfiles de acero y estructura del forjado de paneles X-Panel sobre la chapa colaborante. (X-Panel es un sistema portante de paneles de hormigón armado con núcleo de poliestireno expandido). Ver PDF

Fotografía: EME157
T: La base estructural de la casa es de perfiles acero laminado con forjado colaborante.
GM: Que es de X-Panel y teníamos el problema de cómo encofrar ese forjado por debajo. La chapa colaborante es un encofrado. Le pusimos unas reglas con unos tubitos sin más para aguantar el peso.
T: Es decir, que los tubos cuadrados que hay en medio del forjado de la estructura son como apeo del encofrado de este forjado. Por eso parece que hay dos forjados porque el que aparentemente es colaborante, es un encofrado perdido, ¿no?
GM: La chapa colaborante es un encofrado perdido del X-Panel. Entre las vigas metálicas hay cinco metros de luz, que es mucho. El X-Panel lo aguanta perfectamente, una vez fraguado el hormigón, Pero no durante el proceso de hormigonado con el peso de la capa de compresión; es mucho peso, y no podíamos poner puntales de medio metro de altura.
T: ¿Qué espacio queda?
GM: Oscila, desde 50 hasta 10 centímetros.

Axonometrías con las fases de colocación de los paneles de hormigón con núcleo de EPS en muros y faldones de cubierta, y encofrado de los mismos. Ver PDF

Fotografía: EME157
T: ¿Y la idea estilística de vinculación con la arquitectura japonesa está de alguna manera sugerida por los clientes?
SM-V: Es verdad que tienen pasión por los bonsai y el suiseki. Es todo muy contemplativo, porque el suiseki consiste en encontrar piedras que de alguna manera imitan a la naturaleza como si fueran grandes montañas, como los bonsáis que son árboles en miniatura, y esas piedras las limpian y les hacen unas bases de madera que encajan perfectamente.
Ellos no es que nos dijeran que querían que la casa tuviera estética japonesa, pero nos cuentan todo esto y que necesitaban un sitio exterior para poner los bonsáis, y los aleros surgieron rápidamente.

Fotografía: Luis Asín
T: También los pilares de la fachada son un poco arbóreos.
GM: Eso fue curioso porque cuando lo vio Yonchu nos dijo que su firma como ilustrador es una Y de Yonchu, pero fue casualidad. De hecho, en la primera maqueta no estaban, pero dibujando y acortando la luz con el mínimo número de apoyos a tierra salió la Y griega.
T: De hecho, esos pilares en Y griega están sobre el perfil de borde ¿se podría haber puesto otro tipo de pilares? Porque al final lo reparte la viga.

Fotografía: Luis Asín
GM: Podríamos haber puesto más pilares finitos verticales, pero cambiaba mucho todo. El punto de partida clave en esta obra fue el presupuesto.
SM-V: Cómo hacemos lo mejor con lo mínimo. Y de ahí sale la planta cuadrada, rectangular, y la cubierta a dos aguas que no era negociable porque nos obligaba el ayuntamiento. Y ahí empezamos a probar.

Axonometría construcción cubierta. Ver PDF
T: ¿La cubierta de pizarra es por normativa? ¿Te obligan a usar pizarra o puede ser teja?
SM-V: En el proyecto nos apetecía policarbonato o algo transparente, o incluso de chapa galvanizada, por economía y porque reforzaba la idea de la casa japonesa, como las casas de Tokio, Pero el arquitecto municipal dijo que debía ser teja o pizarra, algo pétreo.
GM: De hecho, hubo una época en que pensamos forrarla con zinc. Suponía un aumento importante del presupuesto y ahí fue cuando cayó el lucernario. Al final queda muy bien como está y es un material para toda la vida que no dará problemas.

Sección constructiva, PDF con leyendas con Suscripción Premium.
T: El uso del X-Panel, como habéis utilizado en otros proyectos, ¿era una opción, lo teníais claro o hubo otras alternativas también a la estructura?
GM: Aquí lo tuve bastante claro, porque cuando son paredes largas y no hay mucho rincón, sí que es competitivo. Es verdad que luego me empeñé en hacer la cubierta con el mismo sistema y es más complicado, como el dejar el hormigón visto y usar los mismos encofrados de la mitad de la casa para el otro... Hemos aprendido mucho en esta obra y ya en la siguiente estamos mejorando el proceso y el resultado.
SM-V: Porque nosotros también nos encargamos de la construcción. Con esta obra no hemos ganado dinero, pero hemos aprendido a encofrar en visto con X-Panel, que era importante para otra obra que esté en marcha y la hemos ejecutado con tablitas.

Fotografía: Luis Asín
T: ¿Y qué opinaban los clientes de estos experimentos?
SM-V: Ellos han asimilado las imperfecciones con mucha deportividad e incluso encontrando belleza en las imperfecciones.
T: Que encaja con esa actitud contemplativa.
GM: Y también eran conscientes de que el presupuesto estaba muy por debajo del mercado y que todo eran esfuerzos para ofrecer algo más que una casa en crudo.
T: La casa tiene un aislamiento casi continuo con el X-Panel y se climatiza con suelo radiante- refrescante, ¿Cómo es la solución a nivel de instalaciones?
GM: Tiene aerotermia. Hemos hecho un mínimo cuarto de instalaciones dentro de la habitación de invitados, que mide tres metros y medio en donde está colocado el acumulador de agua caliente, los vasos de expansión…, todo en vertical, encajado como de relojería. No lo hemos hecho compacto porque era más caro. Y la unidad exterior está en el jardín, entre unas rocas, que luego quedará oculta con el estudio.

T: ¿Están viviendo ya en la casa?
GM: Sí, desde diciembre pasado.
T: ¿Y qué tal están?
SM-V: Están felices, sí. No paran de recibir a gente. Dicen que les ha cambiado la vida, que antes no eran de tener gente en casa, pero ahora les gusta.
Y para nosotros también ha sido una experiencia muy positiva e incluso estamos pensando en hacer una promoción a partir de esta casa.

Fotografía: Luis Asín
T: ¿Qué dimensiones tiene la casa?
SM-V: La casa mide 150 metros cuadrados. 202 con el porche, en una parcela de 2400 metros
La casa es pequeña, pero el porche le da el lujo.
T: Y lo que resulta muy bien es el alzado lateral, tan apaisado y tan limpio.
GM: Lo de bajito era también por tener menos metros de fachada, al final son metros de material.

Fotografía: Luis Asín
T: Sí, sí, pero la línea de alero, tan fina, que es el propio tablero de encofrado, queda fantástica.
GM: Ese detalle es el más trabajado del proyecto. Y, además, hay una anécdota curiosa que es, cuando estaban puestos los encofrados en los muros, hicimos unas fotos preciosas, y el amarillo quedaba muy potente y pensamos en dejarlo visto en algún lado. Entonces, para ese detalle, simplemente le dimos la vuelta al tablero de encofrado, y resultó que el color corporativo de Yonchu es el amarillo.

Fotografía: Luis Asín
T: ¿Ha cambiado mucho la casa final respecto de la proyectada inicialmente?
SM-V: A nosotros nos parece que la casa ha quedado como una nécora, con el hueco en el centro y luego por los lados muchas cavidades pequeñitas.
GM: O como una tortuga, que no sé si habéis visto la sección, pero tiene los órganos abajo a los lados y el centro es todo hueco, para llenarlo de aire o vaciarlo y que funcione como un flotador. Los órganos están aquí metidos como en esta casa las habitaciones.
SM-V: Al principio veíamos toda la casa libre sin particiones, solo los muros de carga. Estaba preciosa. Pero ha ganado con las divisiones y las habitaciones tan mínimas. No nos ha dado pena segmentar el espacio.

Fotografía: Luis Asín
T: Esas habitaciones tienen una escala más de refugio. ¿no?
SM-V: O de caravana. Fue algo que fue saliendo, y el día que pusimos la mesa que trajimos de regalo, un trozo de encimera sobrante al que le hicimos una pata, la colocamos y era una cocina de caravana. Es cierto, que nosotros venimos mucho del mundo camping, de furgonetas, caravanas. Nos gusta, y ellos también son muy de acampada. La casa tiene ese espíritu.
Autoría: Silvia Méndez-Vigo y Gerardo Macarrón (EME157)
Localización: Colmenarejo, Madrid
Colaboradores: Irene Miguel
Fotografías: Luis Asín
Empresa constructora: Edificacion Arquimac S.L.
Empresas destacadas:
Editado por:
Publicado: Apr 22, 2026