Natalia López y Ramón Lahoz proyectan un Centro Deportivo en el interior de una plaza cercana a la bulliciosa glorieta de Cuatro Caminos de la que toma su nombre, un edificio transparente, un muro cortina que se protege de sol con pasarelas, estores y vegetación, pero que deja observar la actividad de sus usuarios en las distintas plantas, cada una con distintas soluciones estructurales, según el uso y las dimensiones del espacio a cubrir: hormigón, acero o madera, en pilares, forjados o vigas, para formatos prefabricados, laminados o triangulados siempre bajo la premisa de la racionalización constructiva y la mínima huella de carbono.

Fotografía: Imagen Subliminal (Miguel de Guzmán + Rocío R. Rivas)
El texto que aparece a continuación procede de una conversación sobre el proyecto del Centro deportivo Cuatro Caminos, entre Natalia López y Ramón Lahoz , de Lahoz López arquitectos, con Berta Blasco y Jose María Marzo de Tectónica.
Tectónica: En el análisis del Centro Deportivo Municipal Cuatro Caminos nos vamos a detener en la estructura por tener una complejidad especial, pero antes nos gustaría saber cómo fue el inicio del proyecto y la gestión, cómo surgió vuestra presentación a un concurso con la constructora Eductrade que, por lo que sabemos ha sido una asociación muy buena que ha beneficiado al proyecto. El proyecto ganó el concurso convocado por el Ayuntamiento de Madrid por responder a todas las exigencias en sostenibilidad y la constructora colaboró activamente en ello, ¿podéis empezar por ahí?
Ramón Lahoz: El proyecto es una concesión municipal de un centro deportivo al que se presentan diferentes empresas concesionarias. En este caso, la empresa que nos contactó, y a la que ya conocíamos, buscaba expandirse en el negocio de centros deportivos y nos encargaron un proyecto que para ellos fuera representativo. De esta manera, confluye el deseo de la empresa de generar un edificio singular que los represente, y para nosotros, es una oportunidad muy interesante porque el cliente nos da mucha libertad.
Natalia López: En el pliego del concurso, el Ayuntamiento ya tenía una ambición elevada sobre sostenibilidad, funcionamiento y calidad, quizás sin saber bien cómo cuantificarlas. Además, la constructora y promotora Eductrade tiene un perfil muy técnico, pero también tiene una gran sensibilidad arquitectónica. Todos esos factores se han alineado para llegar a un resultado del que todos nos sentimos muy satisfechos.

Plano de situación y planteamiento del proyecto. Ver PDF

Modelo 3D. Dsign Cloud.
T.: El proyecto, tanto la estructura como la envolvente, es muy sincero. Las fachadas son diferentes porque resuelven condiciones diferentes, y la estructura también habla por sí misma y queda vista e incluso cualifica los espacios. ¿Era así desde el principio? ¿Hubo cambios durante el desarrollo del proyecto?
RL: Ya las ideas primeras que lanzamos al cliente tenían mucho que ver con el resultado. En el estudio, nos gustan mucho las estructuras y no vemos tanta diferencia entre estructura y edificio. Nos basamos en unas ideas primarias: en primer lugar, había un problema de medianeras que nos obligaba a retirarnos y esto generaba una fachada a la que no le da la luz del sol, y no tiene sentido invertir en protegerse del sol ni de las vistas. En segundo lugar, había una idea muy clara de continuidad del espacio público dentro del edificio, por lo que nos interesaba dejar la planta baja diáfana, o lo más diáfana posible. Y en tercer lugar, el programa exigía una sucesión de espacios singulares, como la piscina, una sala grande para ejercicios

Fotografía: Imagen Subliminal (Miguel de Guzmán + Rocío R. Rivas)

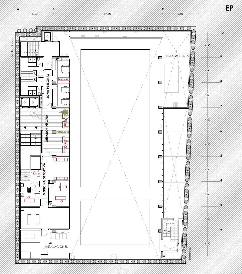
Planta baja. Ver PDF
Por las condiciones del solar, situamos la piscina, que exigía que se resolviera con una estructura de gran luz, en el sótano. A partir de ahí, aligerar la estructura a medida que subíamos permitía tener una planta baja diáfana y hacer que la estructura envuelva los espacios de una manera proporcionada, sin demasiada masividad.
Estas decisiones explican bastante bien las razones estructurales: bajo rasante, la estructura de hormigón es más masiva. Es una estructura de vigas pretensadas de hormigón, razonablemente esbelta. Luego pasamos a una planta baja muy diáfana; otra planta metálica donde descargamos la parte superior del edificio, que ya tiene una estructura básicamente de forjados y pilares de madera. Al ser ligera, nos ayuda a que todo esto sea viable dentro de unas proporciones esbeltas, permitiendo que el programa quepa y tengamos espacio, sin que la estructura ocupe la mayor parte del mismo.

Fotografía: Imagen Subliminal (Miguel de Guzmán + Rocío R. Rivas)
T: Hay un concepto bonito en la memoria y es que hay escaleras ‘que suben ‘ y otras que bajan’. Será por cómo está planteada la circulación, pero queda muy poético.
RL: Primero es por un tema funcional. El edificio es un centro de alta ocupación y necesita anchura de escalera. Se podía haber hecho una escalera del tramo convencional, de 3 ó 3,50 m de ancho, e incluso ocultara, pero queríamos que el edificio fuera muy dinámico. Esa escalera permite hacer cuatro recorridos diferentes. Puedes ir muchas veces sin repetir el recorrido.
T: Claro, los desembarcos de la escalera son diferentes, van cruzados.
RL: Están en X. Son como dos escaleras convencionales enfrentadas por la meseta. Y tiene mucho sentido en un centro deportivo… anima a subir y bajar fácilmente. (Texto extraído de la conversación)

Sección transversal. Ver PDF

Fotografía: Imagen Subliminal (Miguel de Guzmán + Rocío R. Rivas)
T: Dejar la planta baja diáfana, implica situar la estructura por encima de ella, y lo que hacéis es que la propia planta superior sea la estructura, unas grandes cerchas que cogen toda la altura de tal modo que en planta baja aparecen únicamente dos líneas de pilares de acero paralelos a las fachadas este y oeste. ¿es así?
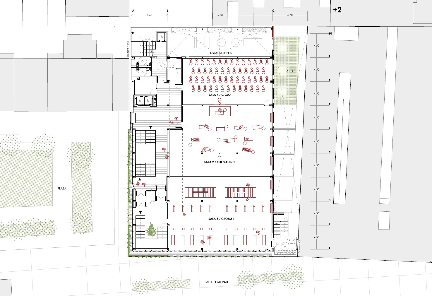
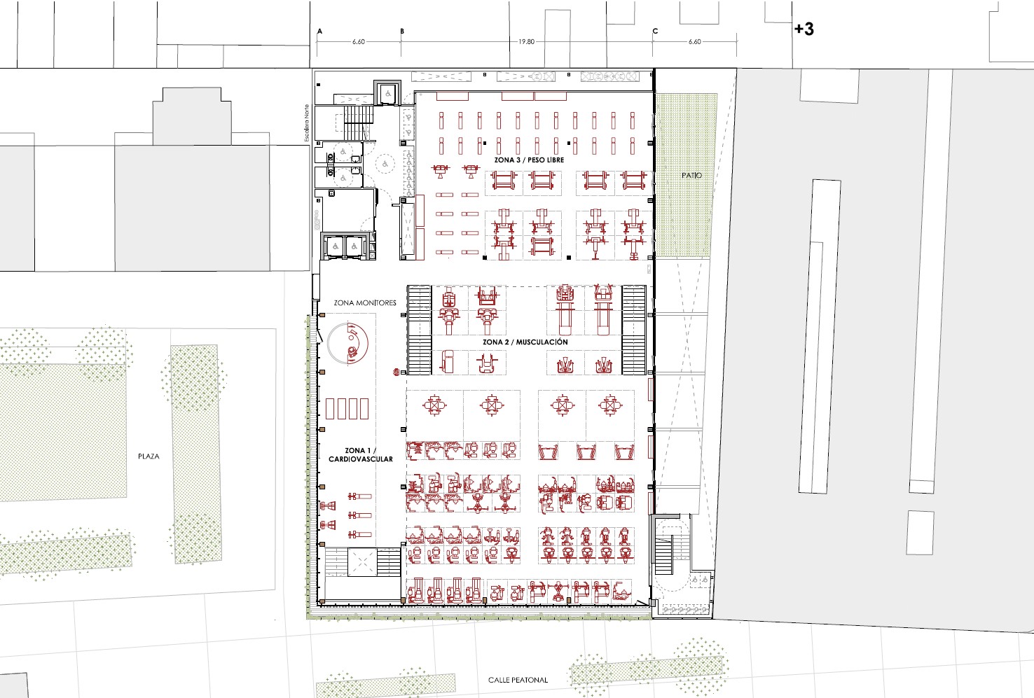
NL: En realidad hay tres líneas de pilares: una línea en la fachada este (C), otra en la fachada oeste (A) y una intermedia (B), que separa las zonas de circulación en donde está la escalera, de las salas, la piscina, o la gran sala de gimnasia. Las luces son de 19,80m en las grandes salas y 6,60 m en la crujía pequeña. La medida de 19,80 m equivale a tres módulos de 6,60 m.
Bajo rasante, se colocan unas grandes vigas prefabricadas de hormigón de 19,80 metros que cubren la piscina y sobre las que se apoya el suelo del vestíbulo que continúa el nivel de la calle. Este gran espacio de recepción, liberado de pilares al estar colgado el techo de las grandes cerchas que ocupan toda la altura de la primera planta, permite además crear el gran porche al sur y liberar la esquina a la plaza. A partir de la segunda planta se vuelven a recuperar las dos crujías: la de la zona de escalera y circulaciones, con estructura de pilares y vigas de madera, y la que corresponde a las grandes salas del gimnasio, que cuentan con cerchas para cubrir las grandes luces de estos espacios.

RL: Son dos franjas programáticas muy diferenciadas: Tenemos una franja de unos seis metros, que es donde se encuentran los núcleos de comunicación y otra que corresponde a las grandes salas, que llegan a tener casi 20 metros de luz, delimitadas por las dos hileras de pilares de mayor entidad. Necesitamos estos espacios diáfanos para actividades deportivas, la piscina o la sala grande de gimnasia, donde no podemos poner soportes intermedios.

Planta sótano. Nivel piscina. Ver PDF

Entreplanta semisótano. Ver PDF

Fotografía: Imagen Subliminal (Miguel de Guzmán + Rocío R. Rivas)

Sección longitudinal. Ver PDF

Fotografía: Imagen Subliminal (Miguel de Guzmán + Rocío R. Rivas). La piscina cuenta con baffles acústicos de Ecophon Saint-Gobain.

Fotografía: Imagen Subliminal (Miguel de Guzmán + Rocío R. Rivas)

Planta nivel 1. Ver PDF
T: ¿Cómo se han resuelto los forjados de hormigón?
RL: Son prelosas. Las losas de la planta intermedia tienen función resistente porque los cordones de la cercha se prolongan en el hormigón, es como una estructura mixta. Son cordones a compresión y a tracción. La propia losa es parte de la viga.
Es una planta sándwich donde el hormigón, aparte de su propia flexión, tiene resistencia global para la cercha y el edificio. Son prelosas de hormigón donde las suelas son nervadas, y luego hormigonamos la losa para que sea una estructura mixta.

Fotografía: Imagen Subliminal (Miguel de Guzmán + Rocío R. Rivas)
T: ¿Y el cordón de lo que sería la cercha, que está incluido en la losa, tiene un armado especial?
RL: Es un perfil conformado en cajón con una solapa donde apoyan las losas y unos conectores para dar continuidad con hormigón. Es una sección mixta de acero-hormigón. Las dos plantas tienen una sección cuadrada con una solapa donde se apoya la losa.
Y conectores, porque necesitamos que ese hormigón contribuya, no lo dejamos solo como relleno del forjado, ya que es donde más esfuerzo tiene la estructura.

Fotografía: Lahoz López arquitectos

Fotografía: Imagen Subliminal (Miguel de Guzmán + Rocío R. Rivas)
T: ¿El encuentro de las distintas soluciones estructurales ha sido fácil?
RL: Hemos tenido básicamente tres sistemas industrializados: el sótano con sus vigas pretensadas, que ha funcionado muy bien porque están muy acostumbrados, incluso la transición desde la obra ejecutada de una manera convencional (la piscina). Toda la estructura del suelo de la planta baja o el techo de la piscina se hizo en dos noches y era increíble cómo lo montaban con un nivel de precisión perfecta. Luego, cuando van subiendo plantas, y las tolerancias estructurales cambian. El encuentro entre la madera y el metal ha tenido algún punto más difícil donde había que hacer alguna modificación durante el montaje. El sistema de montaje de la madera es perfecto cuando es solo madera, pero no es fácil que asuma las tolerancias que exige, por ejemplo, el acero.

Fotografía: Lahoz López arquitectos
NL: Para la estructura de madera sí se hace un modelo BIM exacto de fabricación que luego debe enfrentarse a la realidad. En este caso, los pilares de acero, que eran muy verticales, de tres plantas, tuvieron un desplome que hubo que corregir. Al final se ha acoplado bien. Ya hemos comentado al fabricante de la estructura de madera que sus tolerancias o sus ajustes a estructuras de otro tipo debe ser más amplias.
Hay sistemas, como por ejemplo los prefabricados en muro cortina, una estructura muy testada, tiene -4 ó 5 centímetros incluido en el sistema; tolerancias que se ajustan en el montaje.
NL: Salvando estos problemas, esta obra es un buen ejemplo del resultado de combinar tres sistemas industrializados diferentes que han sabido cómo dialogar y ofrecer una obra personal para nada rígida o monótona, que se supone de un sistema industrializado
RL: De todo se aprende, y si hubiésemos empezado este proyecto otra vez, pediríamos al principio a los de madera que diseñen con más tolerancia, y a los de acero, con menos.

Planta nivel 2. Ver PDF

Fotografía: Imagen Subliminal (Miguel de Guzmán + Rocío R. Rivas)
T: Y, pasando a la estructura de acero, ¿está atornillada?
RL: Las uniones en obra son atornilladas. Las que vienen soldadas son de fábrica. El único soporte de soldadura ha sido la base de los pilares, la compresión de la base. Es más razonable atornillar que soldar. Aunque las placas de regulación vienen atornilladas, luego se acaban soldando. Pero el resto del ensamble en obra es atornillado.

Planta nivel 3. Ver PDF

Planta nivel 4. Ver PDF

Fotografía: Imagen Subliminal (Miguel de Guzmán + Rocío R. Rivas)
T: Y en la memoria se habla de los conductos de distribución de aire, que, por las imágenes se ve que hay de dos tipos, de chapa y flexibles de tela. ¿Cuáles son las razones para usar unos u otros?
RL: La idea original era que todos los conductos vistos fueran textiles, y la razón de que en planta baja estén en chapa es porque pensábamos que no iban a quedar vistos, pero al final, por las circunstancias, nos pareció que estaba bien y se quedaron vistos.
Los conductos textiles tienen un reparto de chapa oculto, que es donde hay que limpiar los conductos. El conducto textil tiene algunas ventajas y en este caso la elección es por acústica, ya que el conducto textil funciona mejor dentro de la acústica de la sala, y por ocupar menos espacio y su facilidad para montarlo, desmontarlo y poder lavarlo.

Fotografía: Imagen Subliminal (Miguel de Guzmán + Rocío R. Rivas)
T: Y a nivel acústico, ¿funciona mejor que los otros conductos?
RL: Sí, a nivel de acústica interna; de soplado de aire. El conducto de chapa, cuando lleva mucha velocidad, silba más. El conducto textil lleva perforaciones, está agujereado. Esa difusión es más amplia y a la vez más lenta. Y también en cuanto a la acústica de la propia sala, es un elemento blando que ayuda a que la reverberación sea menor.
T: El confort que puede dar una distribución de este tipo de aire parece mayor; muy difuso, sin salidas de aire directas, ¿la habíais probado en instalaciones de tipo sanitario, que es el tipo de obra que más realizáis ?
RL: Es la primera vez que lo incorporamos a una obra. En espacios sanitarios es muy difícil que pueda prescribirse porque la limpieza y las revisiones de los conductos de chapa están más estandarizadas. Y más en zonas críticas por normas que necesitan filtros absolutos y el textil no sería viable, por ahora. En espacios abiertos donde las condiciones de higiene son estándar, como laboratorios, si parece una solución muy adecuada.
T: ¿Y le veis sentido a nivel doméstico?
RL: Siempre que veamos un conducto de chapa visto, poner uno textil es viable.

Fotografía: Imagen Subliminal (Miguel de Guzmán + Rocío R. Rivas)

Alzado este. Ver PDF

Fotografía: Imagen Subliminal (Miguel de Guzmán + Rocío R. Rivas). El nuevo volumen proyectado, al despegarse de la medianera sobre la que se adosaba el edificio original, genera un patio interior que libera la medianera y crea un espacio que permite la ventilación y la entrada de luz sobre la fachada este del Centro deportivo.
T: Uno de los logros en este gimnasio es el nivel de reutilización de las aguas grises, ¿Cómo lo planteasteis y conseguisteis?
NL: Verdaderamente, es que una de las puntuaciones del concurso era la gestión del agua.
Es decir, que ya no solo el cliente, sino también el pliego de condiciones del concurso ya era ambicioso. Nosotros lo planteamos y nadie nos puso ninguna pega.

Esquema reutilización y reciclado agua.
RL: En este edificio se da la particularidad de que el agua gris reciclada y filtrada se puede utilizar para rellenar cisternas y para riego de jardines. No se puede utilizar para uso potable ni para duchas. Por las circunstancias del edificio, estábamos produciendo más agua reciclada de la que gastamos. Las duchas de un gimnasio producen mucha agua, y lo que se consume en otros usos es muy poco, al no tener un jardín extenso que regar, por ejemplo. El 100% del agua que usamos la estamos reutilizando, y nos sobra mucho.
NL: Sería buenísimo hacer un convenio con el ayuntamiento para que se regara el jardín de la plaza con el agua reciclada.
T: ¿Y esa agua, además de para las cisternas, se utiliza en la fachada que tiene plantación?
NL: También. Lo que pasa es que es un sistema hidropónico y tiene muy poco consumo. Es un circuito cerrado con un depósito. No es un sistema que consuma mucha agua. Si en el futuro se aumenta la cantidad de plantas en el edificio, en la cubierta, en el patio… habría agua depurada de sobra para cubrir esa demanda.

Fotografía: Imagen Subliminal (Miguel de Guzmán + Rocío R. Rivas)
T: ¿El edificio iba a tener desde el principio ese plus de vegetación en la fachada, sumada a la protección solar?
NL: Sí fue desde el principio, porque las salas tienen profundidad y queríamos meter la mayor cantidad de luz posible. Por eso, se cambió toda esa fachada con muro cortina, que va modulado igual en las dos fachadas. Pero, sobre todo, la fachada de la plaza es una fachada oeste y hay que darle una protección solar. Se planteó la pasarela desde el principio, junto con los cables, las plantas y los estores. A todos les pareció bien; nadie se extrañó en aquel momento. Tampoco es un sistema complicado de montar, pero vas sumando elementos que son capas y al final encarecen. Estuvo a punto de no instalarse la plantación, y el edificio no habría sido lo mismo porque ese detalle funciona tanto como una mejora para el usuario como su apreciación del edificio desde la plaza, que área parte del planteamiento urbano del proyecto, de hacer ciudad.

Fotografía: Imagen Subliminal (Miguel de Guzmán + Rocío R. Rivas)
T: ¿El proyecto incluía también intervenir en el entorno?
NL: Solo el edificio; la plaza ya estaba hecha. Era una parcela que pertenecía al metro. Ya se habían construido todas las viviendas del perímetro que hacían medianera y la plaza peatonal. Solo quedaba esa parcela. La plaza es muy agradable porque vienes de Bravo Murillo, con mucho tráfico y ruido, y de pronto entras en un sitio tranquilo, agradable, con verde, donde ves a los niños jugando. El edificio quiere reflejar esa actividad urbana y lo hace a través de esa continuidad del interior-exterior en el porche, que tiene el mismo pavimento que la plaza. Ese espacio cubierto es un regalo a la ciudad, porque podían haber sido metros para el edificio.
RL: Ese vacío que se ha hecho en la entrada hace que la percepción del espacio de la plaza sea completa.
NL: La gente, al cruzar, opta por el porche; si hay lluvia sirve para refugiarse o en los meses de calor, para protegerse del sol. Ese porche es un gesto para la ciudad y el patio interior es una apuesta por darle luz y ventilación al edificio y también a la medianera.

Fotografía: Imagen Subliminal (Miguel de Guzmán + Rocío R. Rivas)
Autoría: Ramón Lahoz Rodríguez y Natalia López Matesanz
Localización: Madrid
Colaboradores: Director de ejecución de obra: Antonio Franco (Proyecta Obras Control de Calidad SL); Consultor instalaciones: INGHO FM; Consultor estructuras: BIS 211; Consultor acústica: Audiotec
Fotografías: Imagen Subliminal (Miguel de Guzmán + Rocío R. Rivas)
Promotor: Ayuntamiento de Madrid
Empresa constructora: Eductrade Infra
Empresas destacadas:
Editado por:
Publicado: Oct 31, 2025