El pabellón De Roca Madre ha resultado ganador de la cuarta edición del TAC! Festival de Arquitectura Urbana. Su emplazamiento, en la plaza de Stagno de Las Palmas de Gran Canaria, sirve de espacio de reflexión para la creación de un nuevo paisaje urbano efímero. La instalación sirve también de umbral de acceso al Teatro Pérez Galdós, generando un interesante espacio de estar. La propuesta es obra del equipo de arquitectos formado por Alejandro Carrasco Hidalgo, Eduardo Cilleruelo Terán, Alberto Martínez García y Andrea Molina Cuadro.

Fotografía: María R. Cadenas

Fotografía: María R. Cadenas
La propuesta busca transformar el espacio urbano en espacio geológico mostrando un material que se encuentra en el pasado, presente y futuro de la isla desarrollando un relato de su historia. El pabellón mira al pasado evocando la construcción tradicional con materiales autóctonos como piedra y madera, pero también al futuro mediante la reflexión en torno a la acumulación de residuos y microplásticos en las costas de Gran Canaria, en gran parte procedentes de corrientes transoceánicas.

Fotografía: María R. Cadenas.
Como indican sus autores: "Su diseño propone una sección geológica y antropocénica que invita a reflexionar sobre el contraste entre el tiempo profundo reflejado en los estratos de la isla y el acelerado impacto humano sobre su ecología en las últimas décadas". El pabellón actúa como un archivo material de estas transformaciones y, al mismo tiempo, como una llamada activa a reconstruir una relación simbiótica con el entorno: rehabilitando sus costas, protegiendo su biodiversidad y revalorizando los materiales y saberes tradicionales arraigados en el territorio.

Fotografía: María R. Cadenas

Fotografía: María R. Cadenas

Fotografía: María R. Cadenas
La pieza está formada por dos muros de gaviones orientados norte-sur, recreando estratos de distintos periodos geológicos: Mioceno, Plioceno, Pleistoceno y Holoceno. El recorrido termina con el presente y la presencia de plásticos que se han recogido durante diversas limpiezas de playa en colaboración con Precious Plastic Gran Canaria, colectivo local que promueve el reciclaje, la educación ambiental y la economía circular.

Sección y plano geológico

Planta
Axonometría. Ver PDF

Alzado. Ver PDF

Sección. Ver PDF
Para la construcción de los muros se han utilizado escuadrías de madera que crean una estructura envuelta en malla metálica doble para contener las piedras de diferente naturaleza y tamaño. Se han empleado tres tipos de piedra autóctona: la piedra amarilla-naranja de Ayagaures, piedra azul de Arucas Rosa Silva y piedra de Arucas de la cantera Lomo Tomás de León, componiendo un mosaico de la geodiversidad insular. Entre ambos muros se dispone una celosía de madera y piedra que crea un refugio.

Fotografía: María R. Cadenas

Fotografía: María R. Cadenas

Fotografía: María R. Cadenas

Axonometría constructiva. Ver PDF

Despiece. Ver PDF
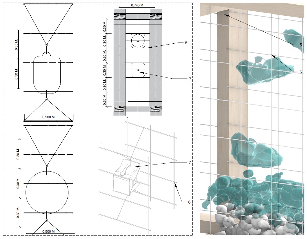
Estructuralmente el pabellón se resuelve a través de una malla tridimensional de perfiles de madera de pino laminado que construye el armazón que contiene la piedra. Esta estructura está compuesta por un doble orden estructural, uno principal conformado por las vigas y pilares de 200 x 100 mm que construyen las caras de los muros y otro, secundario, constituido por vigas de 160 x 80 mm que atan transversalmente las dos caras de cada uno de ellos. Para distribuir la transmisión del esfuerzo estructural en el suelo bajo los muros se coloca un emparrillado de madera con las vigas de 160 x 80 mm que ayuda a distribuir el esfuerzo vertical y funciona como cimentación superficial. Las uniones entre los diferentes órdenes se realizan de forma mecánica a través de tornillería metálica y en el caso de las uniones con un mayor esfuerzo estructural con pletinas en L o Z que permiten el refuerzo de dichos encuentros.

Detalle. Ver PDF

Detalle. Ver PDF

Detalle. Ver PDF

Detalle. Ver PDF

Proceso de construcción

Proceso de construcción

Proceso de construcción
Sobre esta estructura, para construir el muro de gaviones adaptado, se coloca una doble malla de sujeción compuesta por una primera capa de mallazo de diámetro 6 mm y 150 x 150 mm de módulo que soporta el empuje lateral de la piedra y una segunda capa formada por una malla de triple torsión con apertura de 50 mm que ayuda a mantener las piedras de menor calibre dentro del ancho del muro. Ambas mallas quedan fijadas a la estructura de madera por su cara interior a través de un sistema de grapas puntuales.
Finalmente, la piedra se vierte dentro de la jaula formando tres estratos diferenciados: piedra volcánica picón rojo en la parte superior, piedra basáltica gris de Arucas en el intermedio y piedra azul Rosa Silva en la base. Los elementos pétreos colgados se suspenden a través de taladros con tacos de sujeción que quedan atados a la estructura mediante cables metálicos.

Fotografía: José Guilherme Marques

Fotografía: José Guilherme Marques
El pabellón sirve también como un espacio de transición y adaptación acústica y climática, de tal manera que la plaza se convierte en espacio de intercambio y aprendizaje entre los ciudadanos. Además, se incluye un conjunto de actividades vinculadas al espacio como talleres, charlas, encuentros sobre geología, artesanía y sostenibilidad. Las actividades refuerzan la reflexión sobre la memoria, la naturaleza y la sociedad como colectivo capaz de transformar el futuro en una realidad sostenible.

Fotografía: María R. Cadenas.
Promotor: Festival de Arquitectura Urbana, TAC! ; Ministerio de Vivienda y Agenda Urbana. Gobierno de España. Fundación Arquia. Dirección de artística, Javier Peña (TAC!)
Arquitectos: Estudio Latente, Alejandro Carrasco Hidalgo, Eduardo Cilleruelo Teran, Alberto Martinez Garcia, Andrea Molina Cuadro
Colaboradores: Héctor Martínez (Ayuntamiento de Las Palmas, diseño urbano); Hugo Ventura (Huca Arquitectura) — Estructura; Aaron Martín (Madrelagua -Aceinsa) — Acero, piedra y montaje; Vanesa Muñoz (Carpinterías Muñoz) — Estructura de madera; Claudio G. Roque (Roca) — Piedra reutilizada; Miguel Carrasco & Loreto Felipe (Precious Plastics) — Plásticos reciclados; Sara Alemán Millares — Coordinación; Antonio Yapci Navarro — Seguridad y Salud
Equipo de carpintería: Luis F. Benítez Bautista, Adrián Cabrera León, Francisco Cabrera Muñoz, Juan Carlos Cruz Mayor, Juan Carlos Guedes Sánchez, Carmelo Medina Godoy, Daniel Montesdeoca Benjumea, José Miguel Monzón Muñoz, Demetrio Ramírez Suárez
Piedra: Kevin Lorenzo Chacón; Extracción: Manuel Cruz Rivero, Juan Ventura Deniz; Piedra: Miguel Padrón Morales, Juan Alberto Naranjo Hernandez, Luis Gonzalez Ramirez, Itamar Díaz Mendoza, Israel Díaz Mondoza
Acero: Simón Jimenez Hernandez, Carlos Floro Vega Santana, Orlando Santos Abrantes, Jose Juan Hidalgo Martin, Carlos Alemán Ojeda
Emplazamiento: Plaza Stagno, Las Palmas de Gran Canaria, España.
Fotografía: María Rodríguez Cadenas / José Guilherme Marques
Editado por:
Publicado: Dec 22, 2025