BAT Architecture proyecta un edificio escolar para el que plantea una construcción Passivhaus con estructura de madera CLT que protege y regula térmicamente mediante una fachada ventilada cerámica de Faveker, para la que diseñó específicamente la pieza extrusionada.

Fotografía: Aitor Estévez.
El Departamento de Educación del Gobierno Vasco ha definido un modelo de construcción tanto de los nuevos edificios educativos como de las ampliaciones alineado con los criterios Passivhaus que tan bien encajan con las condiciones climatológicas locales.
Siguiendo este criterio, el estudio BAT Architecture ganó el concurso para realizar el nuevo Instituto de Educación Secundaria de Muskiz (IES Muskiz, Bizkaia) que planteó con una estructura íntegramente de madera contralaminada (CLT) y fachada ventilada cerámica extrusionada de Faveker.
El nuevo IES se sitúa en el municipio de Muskiz, en el valle de Somorrostro, integrado en la comarca de Gran Bilbao, que presenta grandes contrastes entre el pasado mineral y el presente industrial con espacios naturales de gran belleza.

Emplazamiento.

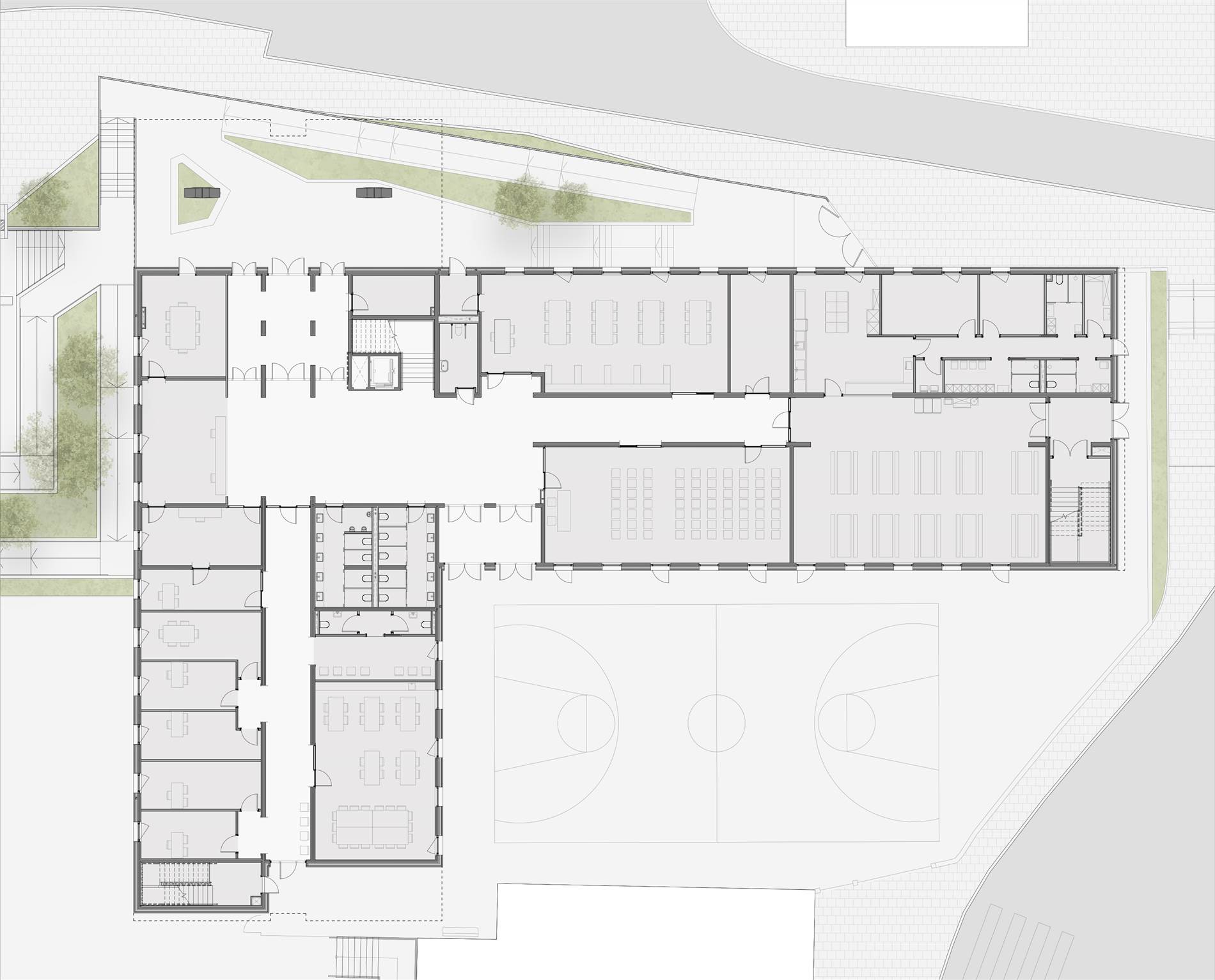
Planta baja.

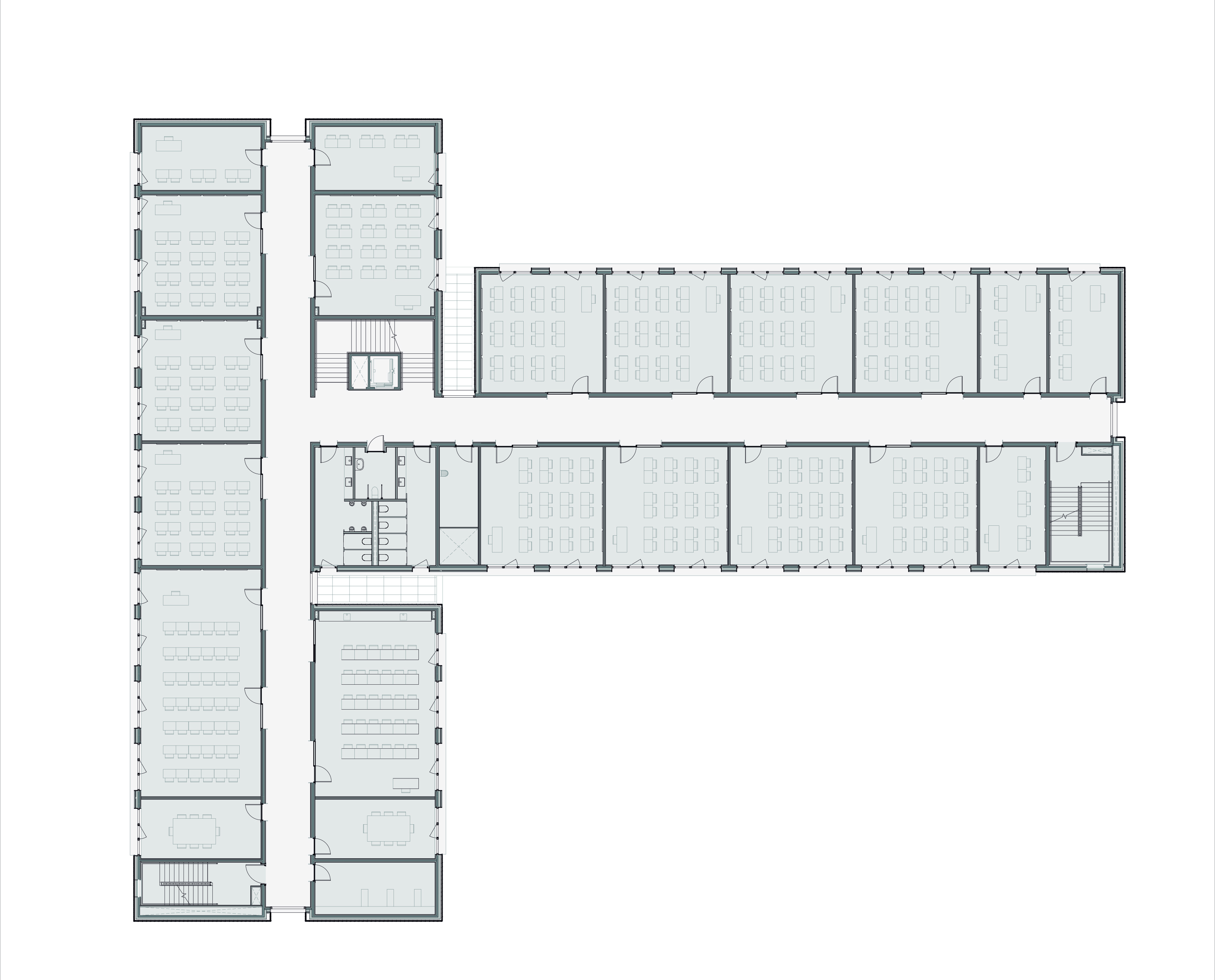
Planta primera.
El IES, con una superficie de 4.191 m², se sitúa en una zona residencial de poca densidad, en una parcela condicionada por un edificio escolar de ladrillo prexistente. Estos terrenos forman parte de la herencia de un indiano originario de Muskiz, Prudencio Cantarrana, que, a su muerte, donó la parcela con la condición de que tuviera un uso educativo. Entre el edificio preexistente (Colegio Público Prudencio Cantarrana) y el nuevo Instituto se ha abierto una plaza de acceso en la que se ha mantenido el conjunto de arcos de piedra extraídos tras la demolición de las antiguas escuelas de Cantarrana.

Fotografía: Aitor Estévez.
En este entorno de vagas referencias arquitectónica BAT Architecture propone un edificio cercano en el que la piel cerámica dialoga con el edifico escolar de ladrillo, pero su geometría y acabado cristalizado ofrece una imagen contemporánea que continua con la singular estructura de soporte y la construcción con madera que queda parcialmente vista en el interior.

Fotografía: Aitor Estévez.

Fotografía: BAT Architecture.

Fotografía: BAT Architecture.

Fotografía: Aitor Estévez.
El nuevo instituto se organiza en dos volúmenes longitudinales que convergen en un espacio central presidido por una gran escalera abierta que articula la vida del centro; rótula que aumenta la entrada de luz natural en el espacio interior y facilita una ventilación cruzada. La estructura de madera contralaminada (CLT) ofrece ventajas térmicas, acústicas y medioambientales, con un importante ahorro de emisiones de CO₂ y un consumo energético hasta un 90% menor que un edificio convencional.
Siguiendo los estándares Passivhaus, el proyecto combina aislamiento térmico de altas prestaciones, control de puentes térmicos, hermeticidad al aire y ventilación mecánica con recuperación de calor, garantizando un confort constante para el alumnado y el personal docente.
La importante envolvente aislante se acaba hacia el exterior con una fachada ventilada cerámica que aporta un comportamiento más adecuado a la climatología de la zona, en la que predominan inviernos húmedos de frío moderado, pero también temporadas con una elevada radiación solar.
La ampliación del instituto de Muskiz resuelve su envolvente mediante una fachada ventilada cerámica desarrollada específicamente para el proyecto, en colaboración con Gres Aragón Faveker, que fabrica una pieza de porcelánico extruido diseñada ex profeso para este edificio, la pieza GA16 MUSKIZ. La solución busca aligerar la presencia volumétrica del conjunto y, al mismo tiempo, garantizar unas prestaciones térmicas compatibles con los requerimientos del estándar Passivhaus planteados en el concurso.

Perfil de la pieza de gres porcelánico extrusionado GA16 MUSKIZ.

Pieza de gres porcelánico extrusionado GA16 MUSKIZ.
El revestimiento exterior se compone de piezas de gres porcelánico extrusionado de sección alveolar, obtenidas mediante un molde propio diseñado por el equipo de BAT para este proyecto. La geometría hueca de la pieza reduce el peso propio, mejora el comportamiento térmico del aplacado y aporta rigidez al conjunto, permitiendo luces y formatos que refuerzan la lectura unitaria de los volúmenes. La cara vista se somete a una cocción a alta temperatura que genera una superficie exterior casi cristalizada, de brillo contenido, capaz de captar y descomponer la luz natural a lo largo del día.

Fotografía: Aitor Estévez.
Esa piel cerámica incorpora un relieve longitudinal que enfatiza la verticalidad sobre un alzado esencialmente apaisado y remite, de forma abstracta, a los engatillados metálicos tradicionales, envolviendo también los techos de las zonas en sombra y los porches de acceso.

Fotografía: Aitor Estévez.
Las piezas se suspenden sobre una subestructura de montantes y perfiles de aluminio anclados a la hoja resistente. Esta subestructura configura la cámara de aire continua propia del sistema de fachada ventilada, que permite la circulación del aire por efecto chimenea entre el aislamiento y la hoja cerámica exterior, evacuando posibles humedades intersticiales y contribuyendo al equilibrio higrotérmico del cerramiento. La fijación de las piezas se resuelve mediante sistemas mecánicos ocultos, registrables (FTS 502B), que facilitan su sustitución puntual y garantizan la lectura continua de la piel cerámica.

Fotografía: Aitor Estévez.
Entre la subestructura y el muro portante se dispone un aislamiento continuo de lana de roca de doce centímetros de espesor, que actúa como elemento principal de control térmico y acústico. Este aislamiento se protege interiormente mediante una lámina de control de vapor que regula las condensaciones derivadas del uso docente intensivo del edificio. La hoja interior se resuelve con muros de carga de paneles de CLT, que aportan inercia y estabilidad dimensional, reducen el peso estructural frente a soluciones de hormigón y permiten una obra seca, rápida y con bajas emisiones asociadas.

Fotografía: Aitor Estévez.
El resultado es un cerramiento multicapa donde cada estrato asume una función precisa, desde la piel cerámica exterior, resistente y de muy bajo mantenimiento, hasta la masa estructural de madera contralaminada, pasando por la cámara ventilada y el paquete de aislamiento. La fachada se convierte así en un dispositivo técnico que combina control energético, durabilidad y facilidad de mantenimiento, pero también en el principal recurso de expresión arquitectónica del instituto, capaz de relacionar un volumen compacto y muy aislado con la escala del entorno urbano y con la identidad industrial y cerámica de la región.

Fotografía: Aitor Estévez.
El IES Muskiz es una infraestructura de nueva generación: eficiente, flexible y respetuosa con el entorno, capaz de adaptarse a las necesidades docentes actuales y a los cambios de la educación del futuro. El proyecto ha sido desarrollado por un equipo multidisciplinar especializado, que integró desde fases tempranas a consultores expertos en sostenibilidad, instalaciones y prefabricación. A través de una metodología Lean, se promovió la colaboración activa con industriales y agentes técnicos desde las primeras fases de diseño, incorporando soluciones innovadoras en cada etapa del proceso.
“Nuestra meta era crear un edificio que transmita calma y bienestar: luz natural abundante, espacios abiertos que favorecen la relación y un ambiente silencioso y confortable. Queríamos demostrar que la sostenibilidad no es solo eficiencia energética, sino también calidad de vida para quienes aprenden y trabajan aquí”. Peru Cañada, Socio Fundador BAT

Fotografía: Aitor Estévez.
Arquitectos: BAT Architecture (Peru Cañada y Xabier Arranz)
Cliente: Gobierno Vasco – Departamento de Educación
Ubicación: Muskiz, Bizkaia
Superficie construida: 4.191 m²
Fechas del proyecto: concurso ganado: 2027; proyecto redactado: 2019; inicio de obra: 2022; fin de obra: 2025
Metodología: Lean / Consultorías: especialistas en sostenibilidad y estándares Passivhaus
Colaboradores: Instalaciones (Eurocontrol), Aparejador (Igor Lili), Coord. Seguridad y salud (Iñaki Perez), Consultoría energética (ArkiAlbura), Construcción SIECSA, Miguel Ángel Nevado (Estructura CLT)
Fachada ventilada cerámica: Faveker - Gres Aragón. Pieza extrusionada GA16 MUSKIZ
Editado por:
Publicado: Nov 27, 2025