ASEMAS, Mutua de Seguros y Reaseguros a Prima Fija, ha anunciado los ganadores de la VI edición del Concurso ASEMAS PFC Arquitectura 2025.
Los Proyectos Finales de Carrera (ahora TFM) deben demostrar que el estudiante ha adquirido las competencias necesarias para ejercer la profesión, por lo que, en la mayoría de los casos, consisten en el desarrollo completo de una obra. Reconociendo este ingente esfuerzo que marca el inicio de la vida profesional, ASEMAS organiza un concurso que premia la calidad de estos trabajos, el cual celebra ya su sexta edición.
En esta sexta edición del Concurso ASEMAS PFC Arquitectura se han presentado casi 200 proyectos procedentes de 28 escuelas de arquitectura en España. El jurado ha valorado en el conjunto de los trabajos recibidos, la calidad y concreción de las ideas, su originalidad e innovación, así como la materialidad, cumplimiento de normativas y corrección de la propuesta constructiva de los proyectos presentados.

El proyecto propone un retiro termal en la Sierra de la Culebra, Zamora.

“Este proyecto replantea el papel del arquitecto en un mundo marcado por el colapso ecológico, la despoblación rural en muchos lugares y el agotamiento del modelo extractivo. Frente a este panorama, propone una alternativa posible: un centro termal en una cantera abandonada como prototipo de arquitectura poscrecimiento. Una arquitectura que no impone, sino que repara. Que no consume, sino que cuida.”


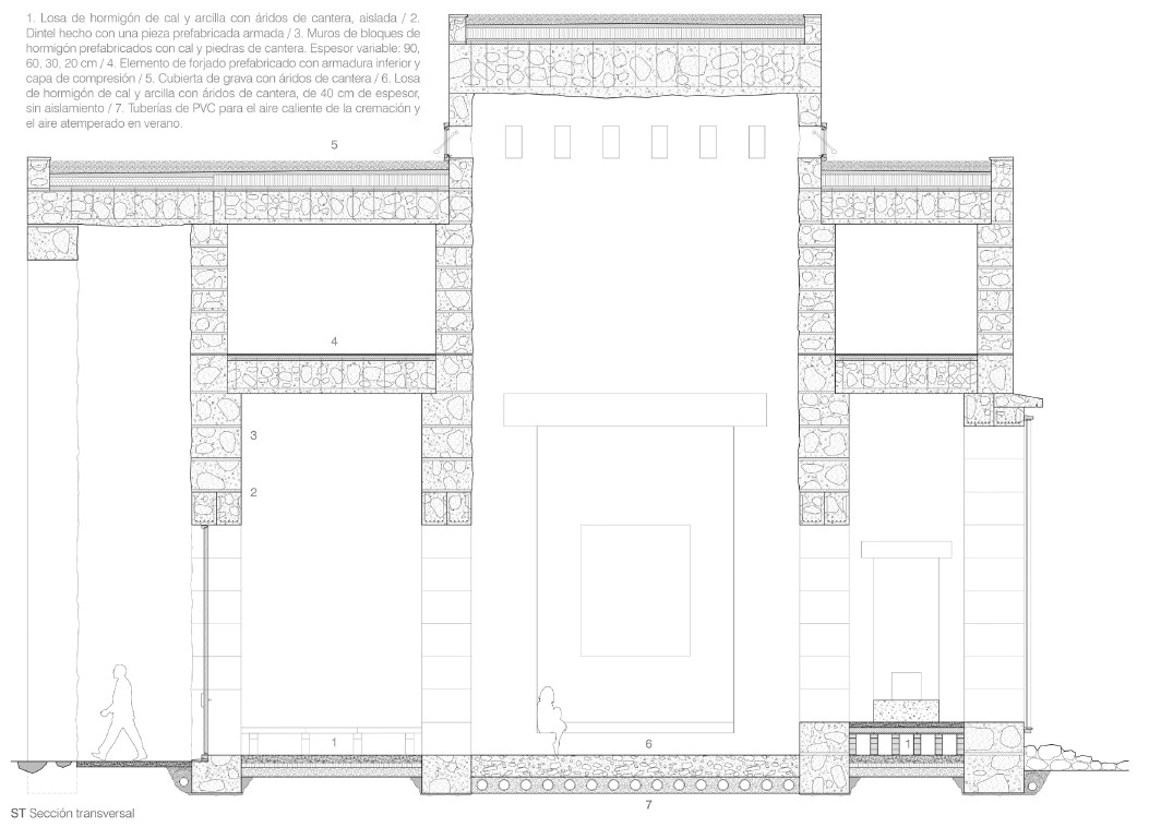
La propuesta propone monumentalizarla cantera de Can Rovira con una actividad funeraria.

“Can Rovira es una cantera de granito abandonada, donde la piedra se extraía mediante voladuras. El proyecto transforma este espacio en un complejo funerario, respondiendo a la necesidad de un nuevo crematorio tras el cierre del de Vallvidrera. La cremación, los columbarios y el crematorio establecen un diálogo entre la escala monumental de la cantera y la humana, explorando la relación entre arquitectura, paisaje y memoria."


Calvo López propone un refugio climático en Iloilo City Proper (Filipinas) como estrategia ante las inundaciones.

"Siendo lloilo City Proper una de las zonas de la Isla de Panay más afectadas por las inundaciones, se plantea una nueva infraestructura para paliar los efectos que causan estos desastres naturales. Esta nueva arquitectura que alberga el mercado de lloilo será capaz de seguir operando, aunque se produzcan inundaciones."


El proyecto consiste en un observatorio para investigar la actividad de los bioconstructores para salvar la biodiversidad de la reserva natural de Cabo Greco, Chipre.

“Los bioconstructores son animales calcáreos que, a lo largo de sus procesos ligeros y vitales, generan grandes estructuras que constituyen hábitats cruciales para innumerables especies marinas Son los arquitectos de los ecosistemas marinos. En el pasado, dominaron los mares y crearon estructuras gigantescas. Hoy en día, estas estructuras continúan protegiendo las costas, apoyando la biodiversidad y contribuyendo a nuestra comprensión de la intrincada historia del planeta y la dinámica continua de los ecosistemas marinos.”
El jurado ha decidido otorgar una mención extraordinaria al proyecto “Sagrado” de la estudiante de arquitectura María de Sotto Martín, y cinco menciones especiales a los estudiantes: Pilar de la Infanta Herrera, Ivan Kovalyk Borodyak, Débora García Sánchez, Marina Ponce Benítez y Nicolás Sancho Cuasante.
Los premios, valorados en 10.000 euros, están repartidos en un primer premio de 6.000 euros y otros dos de 2.000 euros cada uno, acompañados de un trofeo y diploma conmemorativo.
Se pueden conocer todos los proyectos ganadores y seleccionados en ASEMAS PFC.
Ceremonia de entrega de premios del VI Concurso ASEMAS PFC 2025
Editado por:
Publicado: Oct 18, 2025