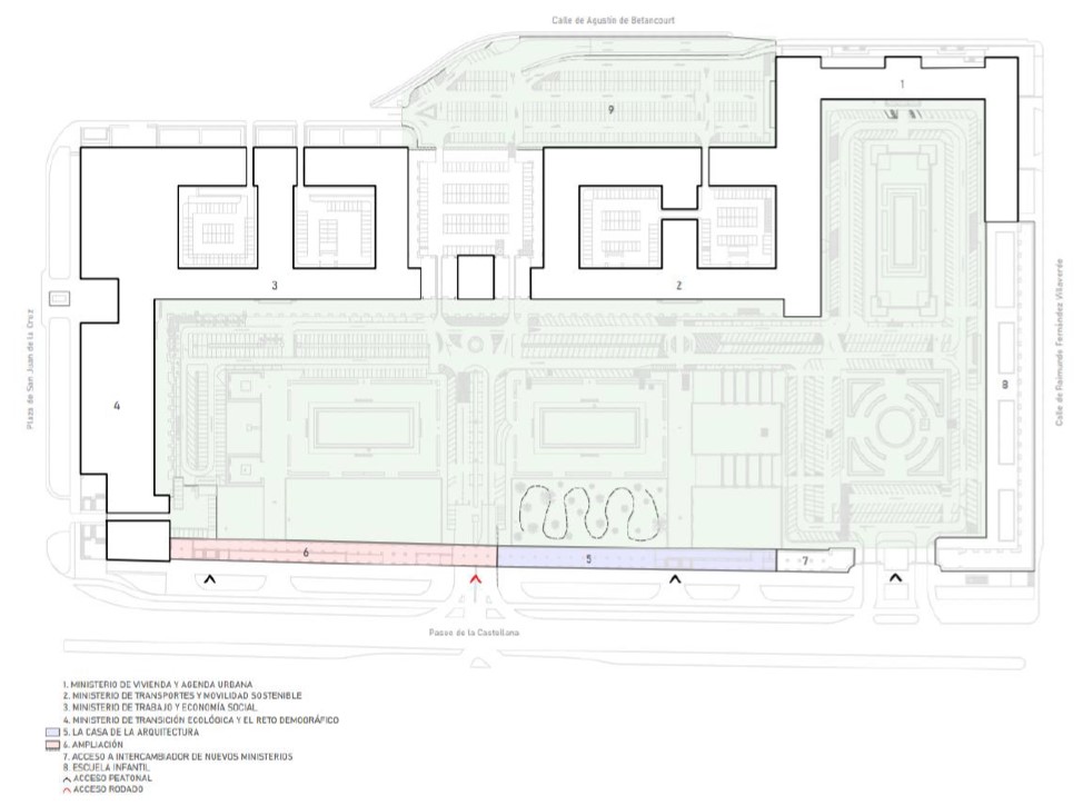
El Ministerio de Vivienda y Agenda Urbana (MIVAU) ha convocado un concurso para ampliar el espacio que ocupa La Casa de la Arquitectura en las conocidas arquerías del edificio, así como rehabilitar los espacios exteriores del complejo de Nuevos Ministerios.

Imagen via Patrimoinio y Paisaje.
El edificio, actualmente ocupado por tres ministerios, definió en los años treinta del siglo pasado el crecimiento de Madrid hacia el norte. El encargado de acometer este proyecto fue el arquitecto Secundino Zuazo, si bien el proyecto se finalizó tras la guerra civil por un Gabinete de profesionales al haber sido depurado el autor del proyecto.
En los años ochenta del pasado siglo se acristaló una de las galerías que cerraban el edificio hacia la Castellana para su uso como espacio expositivo, iniciando una época de gran actividad con exposiciones que han quedado como referentes en la formación de muchos arquitectos y arquitectas.
Juan Pablo Rodríguez Frade junto con BOV Estudio fueron los encargados de la intervención en dicha arquería que, en 2023, se reinauguró como espacio expositivo de 2.400 metros cuadrados distribuidos en tres plantas y que finalmente ha ocupado la institución La Casa de la Arquitectura gestionado desde la Secretaría General de Agenda Urbana, Vivienda y Arquitectura del MIVAU.

Fotografía: Filippo Poli via Frade Arquitectos.
La importancia de la difusión de una arquitectura que beneficia el bienestar individual y social para acercar sus valores a la sociedad ha llevado al Ministerio de Vivienda y Agenda Urbana, a través de la Secretaría General de Agenda Urbana, Vivienda y Arquitectura, a proponer la ampliación de este espacio por lo que ha lanzado la convocatoria de un concurso para un proyecto en el que se invertirán 1,7 millones.

El objeto del concurso de proyectos es la selección de la propuesta, para la ampliación de La Casa de la Arquitectura y la redacción de un plan Director de los espacios exteriores del Complejo de Nuevos Ministerios, que se seleccionara por su calidad arquitectónica, funcionalidad, soluciones bioclimáticas y de sostenibilidad adoptadas, así como por su viabilidad técnica, constructiva y económica.
El concurso tendrá un jurado de calidad para la valoración independientes de los proyectos presentados y adjudicará al ganador el proyecto y la dirección de obra, en línea con los principios y valores de la Ley de Calidad de la Arquitectura.
El concurso está dotado de un primer premio de 30.000 euros, un segundo de 20.000 euros, un tercer premio de 15.000 euros y los dos accésits de 10.000 euros cada uno de ellos (IVA excluido).
El plazo abierto para la recepción de proyectos finaliza el 6 de marzo de 2026 a las 19:00 (CET+1)
Editado por:
Publicado: Dec 29, 2025