Los estudios AZP Daniel Azpilicueta y Biain & Manrique Arquitectos son los autores de un nuevo equipamiento asistencial para la población de Sartaguda, Navarra. Resultado de un concurso promovido por la Comunidad Foral y el Ayuntamiento, el nuevo edificio busca mejorar la calidad de vida de las personas mayores y sus familias, proporcionando servicios especializados en un ambiente seguro y acogedor.
La imagen del edificio, que fue construido en tan solo nueve meses, reproduce con literalidad la reflexión de los autores, que priman con sabiduría la premisa innegociable y básica de toda arquitectura de calidad, que es la buena orientación: el edificio se cierra hacia el noroeste, protegiéndose del azote del cierzo con un revestimiento metálico oscuro, que le dota de un aspecto de envolvente inexpugnable, mientras que la fachada de acceso, recorrida por una rotunda y vibrante piel de madera termotratada de Lunawood, se percibe abierta, acogedora y cálida, invitando a los usuarios a cruzar el umbral y descubrir su interior.

El predominio de la opacidad del revestimiento metálico en el alzado oeste contrasta con la apertura de amplios huecos del alzado sur, en el que se opta por una fachada ventilada de madera termotratada de Lunawood. Fotografía: Josema Cutillas.

Alzados este y oeste

Fachada este del centro de día, con el gran porche de acceso hacia el que se abren los espacios de actividad de los usuarios. A la izquierda, el acceso al edificio. Fotografía: Josema Cutillas.
Con cerca de 1.400 habitantes y situada en la comarca de Tierra de Estella, Sartaguda es una localidad a 80 km de Pamplona, junto a la ribera del Ebro, casi lindando con La Rioja. En la zona norte del pueblo y sobre una parcela de 2.800 m2 propiedad del Ayuntamiento, se ha levantado el nuevo centro de día diseñado por dos estudios afincados en Pamplona: AZP Azpilicueta (Arquitectura y Paisaje) y Biain & Manrique Arquitectos.
El origen del proyecto se remonta a 2022, cuando el Gobierno Foral de Navarra puso en marcha una convocatoria de subvenciones para el diseño y construcción de centros de día en pequeños pueblos de la Comunidad. Doce municipios se presentaron a la convocatoria para desarrollar “actuaciones vinculadas al plan de apoyo y cuidados de larga duración”. Entre los que ya están en funcionamiento, fruto de esa iniciativa, se encuentran el de Azagra (ya analizado en Tectónica y también diseñado por el estudio AZP) y este situado en Sartaguda. Ambos proyectos han sido realizados bajo el estándar de certificación energética Passivhaus.
Además de ampliar las plazas para mejorar la atención a las personas mayores dependientes, la iniciativa, financiada con fondos europeos y de los propios ayuntamientos, tenía como objetivo principal humanizar esos espacios, creando ámbitos eficaces y de carácter más familiar, que proporcionaran a sus usuarios no solo la funcionalidad de un equipamiento asistencial, sino una atmósfera lo más parecida a un hogar.
El edificio, concebido como una pieza arquitectónica aislada pero que forma parte de la trama urbana, es el resultado de un planteamiento que busca, según sus autores, una arquitectura “sobria, eficiente y enraizada en el paisaje”.
La parcela, propiedad del Ayuntamiento, se sitúa en una zona alta del pueblo, al norte de la trama urbana, junto a una zona deportiva.
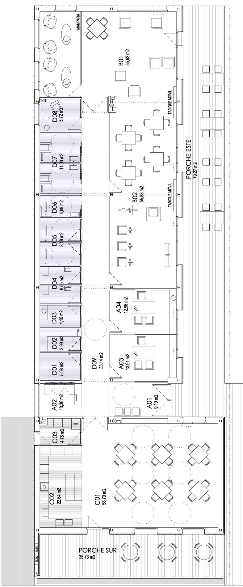
La edificación, con una superficie construida de 380 m2, se sitúa en la parte oeste de la parcela, que, con el eje mayor orientado en dirección norte-sur, tiene una forma sensiblemente rectangular. Esta decisión permite organizar con claridad los accesos peatonales y rodados, concentrándolos hacia el este, lo que favorece la supervisión de la entrada desde el vestíbulo por parte del personal del centro. Pero sobre todo, esta disposición consigue que la edificación se convierta en una barrera protectora frente al viento cierzo dominante, liberando los frentes sur y este para el soleamiento de los espacios polivalentes asociados al porche principal y al jardín exterior.
El nuevo centro de día se integra de forma armoniosa en el sistema de espacios verdes públicos del pueblo, desempeñando el papel de remate por su zona norte. Incluso el propio porche de acceso al edificio puede considerarse el punto culminante de esta agradable red de paseos arbolados de Sartaguda.

Planta del centro de día y urbanización de la parcela. El edificio se sitúa en la zona oeste: los accesos se concentran en el este.
Es precisamente el porche de acceso el elemento arquitectónico en el que se concentra mayor significación, tanto funcional como formal.
Funcional, porque, además de servir como transición entre interior y exterior, resguardar del viento y ofrecer sombra en verano y soleamiento en invierno, es una verdadera extensión del centro, acogiendo al visitante y estableciéndose una transición fluida entre la zona pavimentada que marca la proyección del porche y el jardín.
Formal, porque en lugar de ser un elemento ‘añadido’ a un volumen principal, el porche se genera de manera natural a partir del contundente planteamiento de la imagen del edificio, que se concibe como un delicado cuerpo de madera envuelto por una tersa piel metálica que, a modo de forro, conforma las fachadas más expuestas a los rigores del clima y asciende lateralmente hasta constituir la propia cubierta.
Este plano de cubierta solo es interrumpido limpiamente por un lucernario en forma de prisma triangular tendido sobre una de sus caras mayores y coincidente en planta baja con el corredor que, de norte a sur, organiza la circulación del edificio. El lucernario permite la iluminación cenital de este eje y contribuye a la ventilación natural cruzada del interior.
Es el ‘vuelo’ de esta cubierta al superar la línea de fachada lo que conforma tanto el porche principal, al este, hacia el que se orientan las salas polivalentes, como el situado al sur, de menor tamaño, junto al comedor.
El edificio ofrece una imagen final poderosa que responde a un proceso no muy frecuente en los proyectos de arquitectura, donde la idea inicial suele irse matizando hasta quedar diluida en la obra acabada, debido a los naturales condicionantes que la realidad física impone a la construcción. En el nuevo centro de día de Sartaguda, sin embargo, el edificio construido tiene la rotundidad de ese esquema original que, sin perder un ápice de fuerza, recoge las ideas principales del proyecto.
Vista parcial del porche principal, orientado al este: cubierta ligera tipo 'deck'; falso techo metálico. Fachada ventilada de madera termotratada Lunawood, losetas de hormigón prefabricado. Fotografía: Josema Cutillas.
La distribución del programa se lleva a cabo de forma ordenada, sencilla e intuitiva. Un acceso peatonal y rodado desde la calle conduce al vestíbulo de acceso, donde se ubica el control, con una visión completa de las entradas y salidas que se producen en el centro.

Planta general.
El acceso y la recepción tienen un papel de amplio distribuidor y dividen la planta de edificio en dos zonas: la sur, ocupada por un amplio comedor, cocina y office, con salida al porche de menor tamaño, y la norte, vertebrada por un corredor que va dando acceso, por su lado este, a despachos de administración y enfermería y, a continuación, a las grandes salas de actividades ocupacionales y de rehabilitación, flexibles y luminosas. Además de poder adaptar sus dimensiones, según las necesidades, gracias a los tabiques móviles, estos espacios se abren mediante grandes ventanales al porche oriental, que funciona como una zona de estancia protegida del excesivo calor en verano y con conexión directa al espacio ajardinado.

Sección transversal SC1. Porche este. Ver PDF

Sección transversal SC2. Lucernario y porche este. Ver PDF

Acceso al edificio por el porche principal. Al fondo, un hueco acristalado se abre en la fachada oeste, introduciendo el paisaje y la luz natural en el área de control y recepción de visitantes. Fotografía: Josema Cutillas.

Sección transversal SC3. vestíbulo de acceso. Ver PDF

Sección longitudinal SC4. Porche sur. Ver PDF

Secciones transversales y longitudinales.
Por su lado oeste, el corredor, que es una zona de paso amplia y agradablemente iluminada por el lucernario, va dando accesos a la secuencia de espacios auxiliares que incluyen guardarropa, almacén, lavandería, aseos, consulta de podología y peluquería.
En el área de entrada, la zona de administración y enfermería está resuelta con tabiquería ligera y un cerramiento que combina el vidrio con la carpintería de madera clara, en la línea de proporcionar transparencia, conexiones visuales y un ambiente acogedor y cálido que favorezca la vida comunitaria.
En palabras de los autores, el nuevo centro de día “se erige como un umbral entre espacio de refugio y paisaje: es una arquitectura que protege, acompaña y abre horizontes”.
El proyecto se apoya en criterios de racionalidad constructiva y está realizado bajo el sistema de bajo consumo energético tipo Passivhaus, un estándar de certificación que tuvo sus inicios a finales de la década de 1980 en Alemania y cuyo objetivo era construir viviendas que, con un mínimo consumo de uso, garantizaran una atmósfera interior saludable y el máximo confort.
Los principios Passivhaus recuperan hoy planteamientos esenciales de cualquier buen proyecto de arquitectura tradicional, enriqueciéndolos con los avances técnicos aportados por las prestaciones de los nuevos materiales y por las evolucionadas técnicas de climatización de edificios.
Entre aquellas prácticas propias de una sabiduría elemental se encuentra la decisión de cómo orientar el edificio para poder distribuir adecuadamente los huecos en la fachada y proteger al futuro usuario del frío o del calor extremos. Así es como en Sartaguda, los arquitectos han tomado como primera medida la protección del edificio frente a la orientación más adversa a través de una fachada en la que se abren huecos exclusivamente en dos áreas estratégicas: por un lado, en la zona de recepción y control, para llenar de luminosidad la llegada de los visitantes, y por otra, en la zona de peluquería/podología y en la de estancia que, frente a los espacios de actividades, remata el edificio. Persianas replegables y orientables motorizadas regulan el soleamiento estacional y la protección frente a la radiación, adaptándose a las necesidades de los usuarios.

Sección constructiva tipo con resumen de las medidas propuestas por el proyecto para reducir las demandas energéticas del edificio. Ver PDF
Durante el transcurso de la obra, se han ejecutado pruebas de hermeticidad homologadas, denominadas “test de blower door”, con objeto de realizar un seguimiento de las filtraciones indeseadas de aire y así asegurar una buena hermeticidad y por tanto, evitar pérdidas energéticas. Para conseguir estos valores deseados, se han ido dando indicaciones y órdenes en las distintas visitas de obra. El resultado del ensayo final de obra ha sido de 0,6 renovaciones de aire/hora, que cumple el estándar mínimo exigido.
La modulación del edificio ha permitido sistematizar el proceso de ejecución, que duró solo nueve meses, gracias principalmente al montaje con elementos estructurales metálicos (pilares, vigas, forjado), tabiquería de yeso laminado y sistemas de fachada plug & play, lo que ha permitido optimizar tanto tiempos de obra como costes.
Para la cimentación del edificio se ha optado por zapatas de hormigón HA-30 -resistente a sulfatos, dadas las trazas de yeso presentes en el terreno- con riostras de atado, sobre las que se han realizado unos muretes de hormigón perimetrales que sirven de apoyo estable de las fachadas.

Zapatas de cimentación, a la izquierda, con riostras -derecha- para situar muretes de hormigón de apoyo de fábrica de cerramiento.
A partir de estos elementos se ha levantado la estructura, compuesta por pilares y vigas metálicas, a la vez que se colocaba una sub-base de encachado de grava sobre lámina de polipropileno y, encima, geotextil y solera de hormigón.

Levantamiento de la estructura metálica, con formación de voladizo –izquierda– y unión de elementos para formación de lucernario, con la solera sobre el encachado en ejecución –derecha–.
Para los pórticos metálicos regulares se han utilizado perfiles laminados en frío, en tanto que para los voladizos de ambos porches se ha optado por perfiles conformados, sometidos a un proceso de ignifugación con pinturas R-30 –puntualmente R-90– de color blanco, tras lo que se ha procedido al cierre de ladrillos de las fachadas.
El edificio dispone de dos tipos de fachada: las orientadas a norte y a poniente, acabadas con bandejas metálicas engatilladas –que también materializan la cubierta–, y las acabadas en madera termotratada Lunawood, modelo Flandes, sobre enrastrelado, que, hacia el sur y el este, dotan al edificio de la calidez buscada por el proyecto.

Fotografía: Josema Cutillas.
Las fachadas de madera se han revestido con perfiles de pino nórdico tratado térmicamente por Lunawood, utilizando el proceso patentado ThermoWood®. Lunawood es una empresa finlandesa fundada hace 25 años y conocida por la innovación que aportó al mercado con la madera tratada térmicamente. La madera utilizada en el proceso procede de bosques renovables de Finlandia.
El proceso de temotratado se basa en la modificación térmica gradual de la madera, en donde las propiedades químicas y físicas sufren un cambio permanente. La modificación térmica mejora las propiedades de la madera nórdica de manera homogénea en toda la pieza. Durante el proceso, la madera se trata solo con vapor y calor, no se utilizan productos químicos en ninguna etapa del proceso.
Esta técnica consiste en elevar la temperatura lentamente hasta los 212 ºC y puede llegar a durar 110 horas. Durante el proceso, el agua es indispensable, tanto para evitar que la madera se queme como para aportar humedad a la cámara, sorteando así la aparición de grietas y asegurando una mayor vida útil. Al final se obtiene una madera con un porcentaje de humedad que oscila entre el 4 y el 7%.
El tratamiento ThermoWood® es, en definitiva, un procedimiento térmico intensivo que transforma la estructura y propiedades de la madera y logra que su tendencia natural a torcerse, hincharse o encogerse en diferentes condiciones de humedad se reduzca, como mínimo, en un 50%. El resultado es una madera mucho más estable que la original y con mayor resistencia a la humedad, así como mejores valores de durabilidad, ligereza, aislamiento y coste.

Detalle sección constructiva SC4. Porche sur. Ver PDF

Construcción de la fachada, bajo criterios Passivhaus, con acabado en madera termotratada.


El modelo utilizado: Luna UTV 19x117, presenta un perfil machihembrado con bordes inclinados. Este revestimiento es una opción dimensionalmente estable y de bajo mantenimiento para fachadas en todos los climas.

Fotografía: Josema Cutillas.
Cuando se expone sin tratar a la luz ultravioleta, la superficie de madera ThermoWood® evoluciona hacia un tono gris plateado con el tiempo. Para mantener la tonalidad original, puede aplicarse sobre la madera un tratamiento de superficie pigmentado y de protección frente a los rayos UV.
Las carpinterías de madera –mixtas, madera al interior y aluminio al exterior, en las fachadas metálicas– completan el cerramiento exterior de las fachadas. En cuanto a la cubierta, la envolvente metálica asciende desde la fachada oeste y conforma una cubierta ligera con acabado exterior de panel metálico engatillado sobre cubierta tipo deck, ensamblada en seco.
La sencillez y la clara voluntad de lograr un orden eficaz han dirigido todas las operaciones de diseño de este proyecto. Así, la cubierta inclinada incorpora un lucernario corrido en su zona central que no solo permite mejorar las condiciones de iluminación natural del interior, sino también facilitar la integración de la instalación de placas fotovoltaicas y ocultar de manera eficaz la maquinaria de climatización, elemento que tantas veces daña o desfigura, por falta de previsión del proyectista, la limpieza de la configuración exterior de una obra.


Distribuidor de entrada y corredor de distribución principal, iluminado por el lucernario, con los despachos de administración y enfermería divididos por planos acristalados que permiten la conexión visual con las salas polivalentes, una de las cuales se aprecia al fondo de la imagen. Fotografía: Josema Cutillas.

Vista general del edificio hacia el sur, donde queda patente la luminosidad y las conexiones visuales de los espacios. A la derecha, zona de estancia, comunicada visualmente con las salas de actividades del centro. Ambos ámbitos disponen de falsos techos de virutas de madera. Como pavimento se ha utilizado linóleo.
Los autores plantean el nuevo centro como un equipamiento “eficiente, sobrio y profundamente integrado en su contexto. Su diseño combina criterios de sostenibilidad energética, claridad funcional y respeto por el entorno, al tiempo que ofrece a los usuarios un espacio amable, seguro y vinculado a la vida comunitaria”. En este sentido, la elección de los materiales de acabados ha sido guiada no solo por criterios funcionales sino por la vinculación con el color local de la localidad y con el deseo de lograr una atmósfera confortable y cálida que transmita esa sensación de hogar buscada. Los pavimentos en tonos terrosos y los espacios ajardinados refuerzan la conexión con la identidad ambiental del municipio, en tanto que en el interior se procura que la claridad y la limpieza envuelvan al usuario.
También la elección de la madera como piel del edificio ha sido un gesto significativo de un diseño en el que se ha priorizado la condición humanizada y acogedora del espacio. Los autores se han decidido por una solución que, además de cumplir las cualidades estéticas que requería el proyecto, tiene un excelente comportamiento a la intemperie a lo largo del tiempo.
Reflexionar sobre cómo materializar por medio de la arquitectura conceptos como bienestar, calidez o protección es mucho más que examinar cuestiones relacionadas con los materiales o el confort térmico: es un asunto ligado a saber organizar los espacios; a decidir su grado de relación; a determinar el nivel de transparencia de cada ámbito respecto a la luz natural, el paisaje o las nubes; incluso a proponer con acierto una imagen exterior que permita al observador adivinar el destino para el que el edificio ha sido diseñado y al usuario identificarlo como algo propio. Con estas materias empezamos a movernos en ese terreno misterioso y profundo de la arquitectura, ese que está más allá de la condición técnica y cuyo dominio representa un desafío simbólico para un buen profesional.

Fotografía: Josema Cutillas.
El edificio que AZP y Biain Manrique han levantado en Sartaguda es un extraordinario ejemplo de haber sabido combinar todos esos condicionantes heterogéneos que reúnen técnica y arte para lograr, en un ejercicio de sobriedad y claridad funcional y formal, un edificio que expresa con sencillez los objetivos para los que ha sido diseñado: un lugar que promueve comunidad y ofrece a los mayores que necesitan cuidados la comodidad, la ligereza y la luminosidad de un verdadero hogar.
Arquitectura: AZP arquitectura y paisaje // Biain Manrique arquitectos
Promotor: Ayuntamiento de Sartaguda
Directores de Proyecto y Obra: Daniel Azpilicueta Fernández de las Heras; estudio AZP arquitectura, Patricia Biain Ugarte, Javier Manrique Escola; estudio Biain Manrique arquitectos.
Colaboradores: Xabier Eskisabel Azanza, arquitecto; Arkaitz Solabarrieta Pérez, Eneko Iraizoz Tapia, Hobeki Ingeniería; Carolina Abrego Jimenez, María Navarro Cabezón aparejadoras; Olga Abrego Jimenez, topografía.
Designer Passivhaus: Eneko Iraizoz, Hobeki Ingeniería
Certificador Passivhaus: Martín Amado Pousa
Ensayo Blower door: Alberto Jiménez Tiberio, Arrebol
Fachada de madera: perfiles termotratados Thermowood® de Lunawood, modelo Luna UTV 19x117.
Carpintería de madera: Carpinteria Llodiana. Carpintero: Evaristo Ruiz.
Persianas de lamas apilables y orientables motorizadas: Griesser, modelo Lamisol.
Fachada y cubierta metálica: Europerfil, bandejas engatilladas Eurodesign.
Fechas Inicio de obra: 8 de mayo de 2023; finalización de la obra: 8 de febrero de 2024.
Superficie construida: 380m2
Fotógrafo: Josema Cutillas
Editado por:
Publicado: Jan 12, 2026